This proposal of Traymark Industrial Caravans Pty Ltd is to build a Traymark Mobile Dental Unit that is of robust construction suited to adverse road conditions. The unit is designed to last through the rigors of constant movement throughout the state, at the same time not building in excess weight that would impede easy relocation. The materials and workmanship will be to the highest standard and meet all requirements as stated in the Australian Standards.

Case Study
Dental Caravan Non-Sterile Version
Queensland Health
Introduction
Specifications
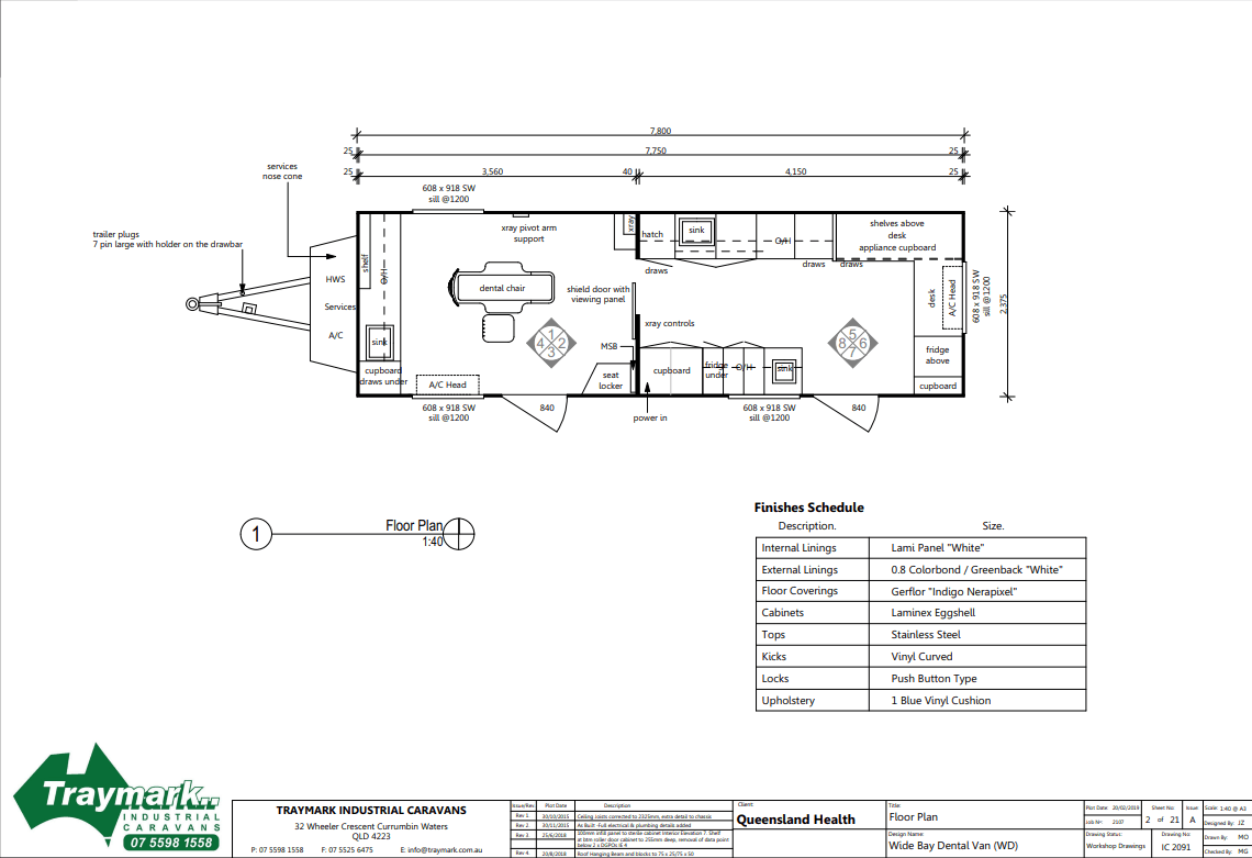
- External body length 7800mm
- Drawbar length 1950mm
- External width 2400mm
- Internal height 2100mm
- Ground clearance axles 250-300mm approx
- Axle Position 180mm approx. behind centre
- Wheel Track 2100mm approx
- Tare weight 4000kg
- Gross vehicle mass 5500kg
- Drawbar height 450mm
The chassis is the backbone of the unit supported with gusseted wall framing. The two combined ensure a strong robust mobile unit for many years of service.
- Chassis members 150 x 75 channel
- Cross members/floor joists 50 x 50 x 5 Angle
- Drawbar 150 x 75 Channel with strong back
- Chassis Hot Dipped Gal
- Wall frame 50 x 25 x 1.6 RHS, 25 x 25 x 1.6 RHS, 75 x 25 x 1.6 RHS Galvanised
- 2 x 65mm square axles - fitted with s-cam brakes and tapered bearings
- Brakes are fitted to all wheels (12" x 2" drum brakes)
- Tandem Suspension kit to carry 5500kg - leaf type with non-lubricated type bushes
- Axles are welded to axle seats and U-bolted to springs to prevent rolling
- Rims are to be Land cruiser split rim type with radial 750-16x 14 ply tyres fitted
- 4 x tyres plus 1 spare mounted under floor
- 4 x mechanical stabiliser legs rated at 1500kg each with removable handle
- 1 x towing coupling - 76mm Swivel ring
- 1 x Heavy duty bulldog jack stand
- 2 x Safety Chains with berglocks
- 2 x Step brackets - steps are aluminium concertina type & full width of doorway (800 wide)
- 2 x Handrails to suit swing out type
- 1 x Utilities box mounted to drawbar (full height)
- 1 x Chair Mounts to floor
- Wall framing is to be galvanised RHS with welds painted
- All welding is with a MIG welder - using .9mm high tensile wire
- All welds and bare steel is primed
- Floor joists are at no more than .400 centres
- Wall and roof framing is at no more than 600 centres
- Walls and roof are bolted together
- Walls are welded every .400m to chassis
- Note : Front wall 50mm RHS with 50mm sound proofing
- 17mm structural ply is glued and screwed to floor joists - then sanded flat
- Underside of floor is painted black - topside of floor is covered in vinyl and coved (Gerflor)
- Wall and ceiling sheeting is 4mm White lami panel
- All edges and joins are encased in PVC strips
- Cabinet work is of high quality HMR board and laminate - all edge 2mm PVC
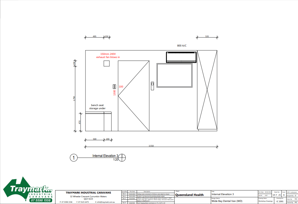
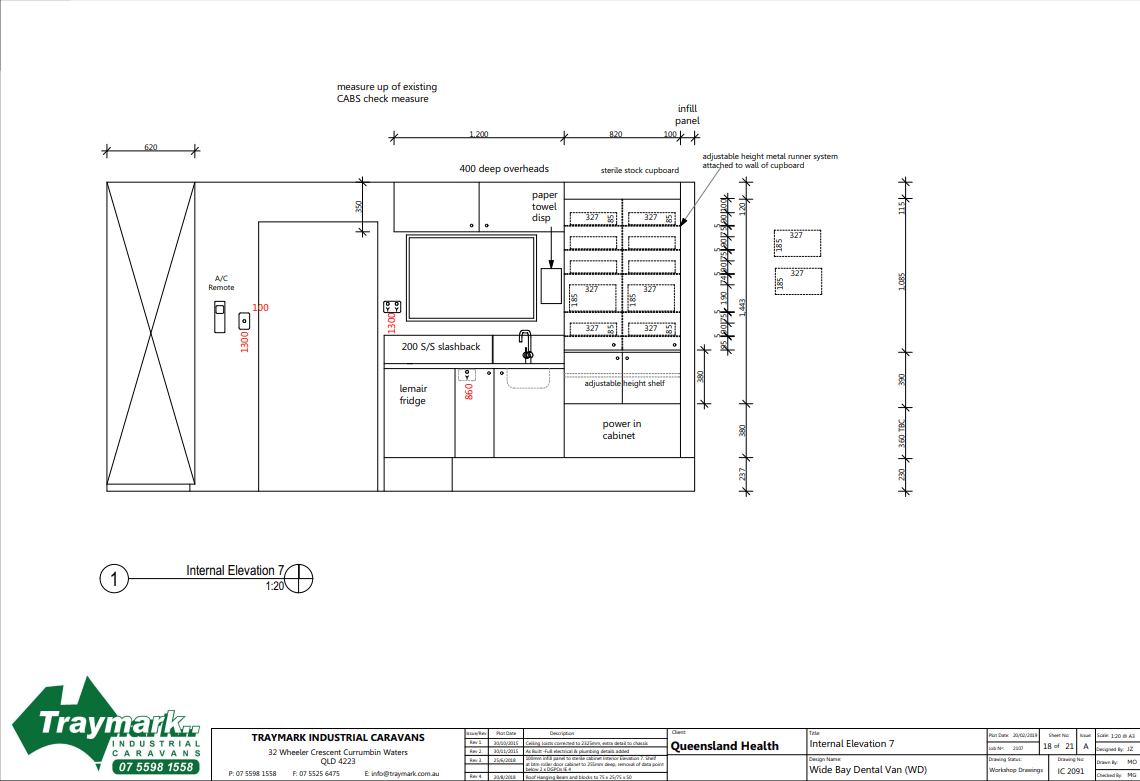
- Cabinet work as per plans
- Smartline aluminium shelves to suit removable mesh baskets
- Cupboard with adjustable shelf - as per plan
- Push button locks fitted to all cupboards and drawers
- Hinges are quality adjustable
- Drawers are on quality metal draw slides
- All drawers and doors to have positive locking devices fitted
- All benches are S/S with 400 x 300 x 200 bowls
- 1 x Sliding door to divide rooms and dividers in bench top
- 1 x Fold down laptop desk as per plan
- External sheeting is .8mm colorbond appliance white fixed with sikaflex and riveted to RHS studs
- All joins are made over steel studs
- Roof sheets are single piece sheets .4mm colorbond steel - surfmist
- Roof is pitched to allow run-off when in level position (left to right) ? Red rub rail will run around the unit
- 2 x 2000 x 840mm commercial grade doors fitted - doors are keyed alike and left hand hinged & Fitted with fixed windows that have security Screens.
- 1 x door is fitted to a metal enclosure for the purpose of storing one (1) lead and power inlet - door is approx 600 x 300 (landscape) and has a small hatch fitted centrally to allow lead to be connected while door is locked
- 4 x Sliding square corner windows @ 603 x 913 (Windows are fitted with security screens) ? Windows are aluminium framed, lockable, flyscreened, security screened and glazed with safety glass
- Full length aluminium awning fitted to side of van 7.6m x 1.2m
- Awnings are a strong lightweight aluminium type and are easily erected by one person.
12 volt wiring is per Australian Design rules Includes
- Indicator lights
- Clearance lights
- Side lights
- Number plate lights
- Reflectors
- 1 x 7-pin plug and receiver
- All lights are LED’s
- Stop lights
- Indicator lights
- All electrical wiring is per Australian Standard - AS3001 and carried out and tested by a licensed contractor
- All wiring passing through metal or timber will be protected using grommets
- Electrical circuits are broken into 12 sub circuits
- A switchboard will be mounted internally and be 370mm wide and 450 long and a hinged transparent door is fitted
- All circuits are protected by circuit-breakers and over current devices
- Circuit-breakers are double pole
- Unit is protected by a 32 amp RCD and a 32 milliamp MCD
- 4 x LED batten lights
- 5 x IP56 rated external GPO’s
- 11 x Double GPO’S
- 2 x Data points
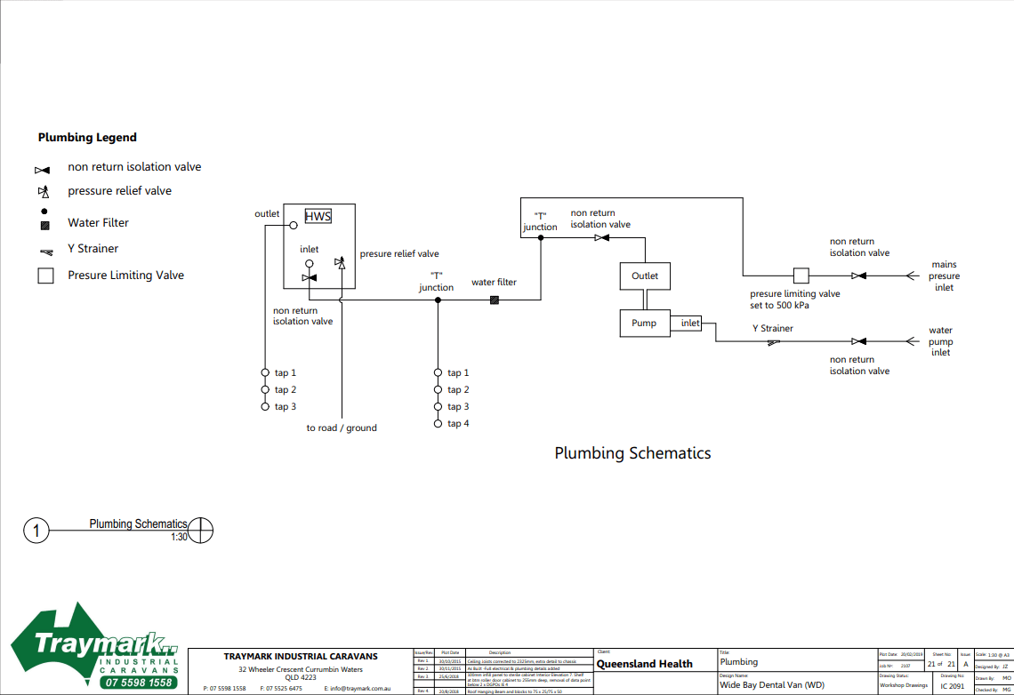
- 3 x Stainless Steel bench tops with sinks fitted including splashbacks
- 3 x Flick mixers to sinks - Taps are paddle type
- All sinks are connected together and terminated at 2 points central to both sides
- 1 x Reefe electric pressure pump mounted to drawbar enclosure
- 1 x Cuno pacific water filter
- 1 x 25 litre Rheem
- All pipes are either PVC or Copper
- 1 x Mains pressure inlet with built in non-return valve, isolation valve and pressure limiting valve
- 1 x 5.2kW Mitsubishi Electric Split Air conditioner - 1 Head to front operating area, 1 head to rear are
- 1 x 25 litre Hot Water System
Provisions have been made for all items listed below, this includes all necessary wiring and any required mounting plates required for equipment which is installed during the manufacture of the van.
- Provision for - 2.5kg Fire Extinguisher
- Provision for - William Green Compressor
- Provision for - Lisa 517 Steriliser
- Provision for - Adec 511 Chair with seamless upholstery
- Provision for - Adec 6300C Ceiling Mount Light
- Provision for - EMS Piezon Scaler
- Provision for - Adec 1601 Doctors Stool
- Provision for - Adec 1622 Assistants Stool
- Provision for - Cattani Turbo Smart A
- Provision for - Satelec X-Mind X-Ray Apparatus
- Provision for - Adec 2122 Delivery Unit
- Provision for - Adec 551S/3 Assistants Instrumentation

)
)
)
)
)
)
)
)
)
)
)
)
)
)
)
)
)
