This proposal of Traymark Industrial Caravans Pty Ltd is to build a Traymark Mobile works van that is of robust construction suited to adverse road conditions. The room unit is designed to last through the rigors of constant movement throughout the state, at the same time not building in excess weight that would impede easy relocation. The materials and workmanship will be to the highest standard and meet all requirements as stated in the Australian Standards.

Case Study
Toilet Toolbox Trailer (6x) Rev.4
Ipswich City Council
Introduction
Specifications
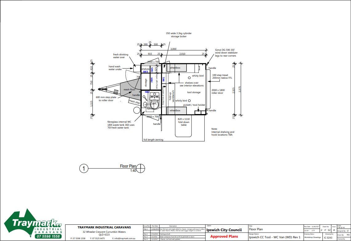
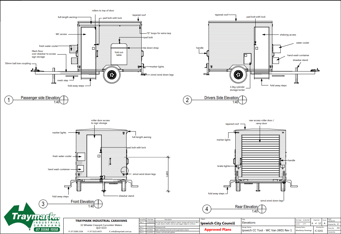
- External body length 3000mm
- Drawbar length 2000mm approx
- External width 2375mm
- External height 2200mm
- Tare weight 1670kg
- Gross vehicle mass 2500kg
The chassis is the backbone of the unit supported with gusseted wall framing. The two combined ensure a strong robust mobile unit for many years of service.
- Chassis members 100 x 50 Steel PFC (Channel)
- Cross members/floor joists 50 x 50 x 5 Steel Angle
- Drawbar 125 x 65 Steel PFC (Channel)
- Wall frame 25 x 25 x 1.6 Steel SHS. 50 x 25 x 1.6 Steel RHS
- 1 x ALKO 50mm square axle - 12” electric brakes
- Suspension kit to carry 2500kg load - leaf type with non-lubricated type bushes
- Mechanical park brake fitted to the drawbar
- Rims are to be split rim type with new radial 750-16 14ply tyres fitted
- 2 x tyres
- 2 x Simol DT590/3SF wind down stabiliser legs (zinc)
- 1 x Towing coupling - 50mm Ball
- 1 x Simol DG706/3SF 2T wind down drop leg
- 1 x water tank bracket
- 1 x Fold out step with non-slip serrated leading edges
- Wall framing is to be galvanised RHS with welds painted
- All welding is with a MIG welder - using 1 mm high tensile wire
- All welds to be sealed with cold gal
- Floor joists are at no more than 600mm centres
- Walls and roof shall be bolted together
- Walls shall be welded every 400mm to chassis
- Steel expanded mesh to drawbar which acts as platform on drawbar - WM50110
- Steel expanded mesh step to side of drawbar - WM50110
- Rear step to roller door with non-slip serrated leading edge
- 17mm structural ply is glued and screwed to floor joists - then sanded flat
- Underside of floor is painted - topside of floor is covered in 3.0mm aluminium checker plate
- Toolroom wall sheeting and shelves are 9mm Plywood - glued and screwed to studs - painted grey
- Toilet wall sheeting is 4mm water impervious Lamipanel - white
- Ceiling sheeting is 4mm Polyester Plywood - glued and riveted to stud
- External sheeting is .4mm maxirib colour-bond sheeting fixed with Sika-Flex and riveted to RHS studs
- All joins are made over steel studs
- Roof sheets are single piece sheets
- Roof is pitched to allow run-off when in level position
- All sheeting will be without dents or bows
- 50mm insulation to roof
- 25mm insulation to walls
- 3 x 2000 x 700mm colorbond lined commercial grade doors
- 1 x 2000 x 1800mm roller door to tool room
- 1 x Lockable storage cabinet for 1 x 4kg gas bottle All doors are keyed alike except roller doors where padlocks are to be used
- 1 x Roof hatch/vent (355x355)
- Chrome grab rails to entrances
- 1 x 750 x 1000mm fold down table to kerb side of the van
- 2 x Whirly birds to tool room
12 volt wiring is per Australian Design rules Includes:
- Clearance lights
- Side lights
- Stop lights
- Indicator lights
- Numberplate light
- Reflectors
- 1 x Small round 7-pin plug
- Traffic lighting is multi-volt LED
- Break-away system is fitted
- Rollerdoor opening
- Included fixings for storage includes
- Shovel hooks as per plans
- Star picket holder as per plans
- Holders for crowbar and long handled tools as per plans
- Shelves to be installed in various locations as per plans
- 1 x Merlin MFT3 fiberglass toilet - 70lt fresh water tank, 180lt waste tank (360x uses approx.) with hand washing facility built in. Toilet is to be charged with chemical prior to delivery
- Universal toilet roll holder fitted
- 1 x 82L grey water waste tank
- 1 x 1.0kg dry powder Fire Extinguisher
- 1 x Omnistor wind out awning - full length
- If required, induction/training on how to use the unit will be provided
- Documentation booklet

)
)
)
)
)
